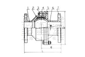
QJB型球形補償器是由殼體,球體,法蘭,密封圈組成。在工作過程中,球體嵌套在殼體內部,二者之間由橡膠密封圈密封連接。球體在使用過程中可以在一定范圍內進行自由轉動,能夠實現管道的角向位移的補償。球形補償器是補償器大家族中的一個新成員,由于其良好的補償管線的橫向,角向位移,使得它在剛剛進入市場之處就受到了廣大客戶的一致好評。單個用的話算是個萬向補償接頭,一般用在鍋爐冷卻系統中。只有兩個組合使用的話就能實現管道橫向位移的補償,并且它的補償量遠遠大于其他一般的補償器。密封性能好,運行穩定,這樣就大大減少了大量的維護工序。
【產品名稱】:QJB型球形補償器(E球形補償接頭)
【產品別名】:法蘭式球形接頭 球形補償接頭
【產品規格】:【DN50mm-DN1200mm】
【產品壓力】:1.0-2.5MPa
【產品】:
【適用范圍】:【弱酸、弱堿、弱腐蝕類、油、熱水、冷水等】
【產品材質】:碳鋼,球墨鑄鐵,不銹鋼.
【產品顏色】:藍色,可根據客戶要求調色.
【工作溫度】:-40度至80度
在線咨詢
購買熱線: 021-622-00727
QJB型球形補償器是由圓形殼體,球體,密封圈組成。殼體包含著圓形球體中間有密封圈連接。這樣球形補償器就能自由的在活動范圍內實現各個角度的位移補償,適用于出現角向位移的管道,方便施工。產品適用于輸送海水、淡水、冷熱水、飲用水、生活污水、原油、燃油、潤滑油、成品油、空氣、煤氣、溫度不高于250度的蒸汽和顆粒粉狀等介質。
1 QJB型球形補償器角向位移補償量大,使用壽命長。
2 QJB型球形補償器材質優良,運行穩定。
3 QJB型球形補償器能夠有效地起到保護管線避免受到地陷帶來的不良影響。
1月21日上午,馬鞍山市重點項目采石長江旅游碼頭躉船開工建設。
該項目位于鎖溪河入江口下游200米處,總投資約1500萬元,將規劃兩個泊位,設置躉船和接岸工程。馬鞍山天宇船舶制造有限公司董事長張擁軍:“我們公司接到承建濱江新區旅游碼頭躉船以后,精心組織施工人員、設計隊伍,我們盡量壓縮傳統節日的放假時間,加班加點按期完成濱江新區的重點項目。
上海駱盈生產的QJB型球形補償器是由圓形殼體,球體,密封圈組成。殼體包含著圓形球體中間有密封圈連接。這樣球形補償器就能自由的在活動范圍內實現各個角度的位移補償,適用于出現角向位移的管道,方便施工。
駱盈球形補償器就能自由的在活動范圍內實現各個角度的位移補償,適用于出現角向位移的管道,方便施工。產品適用于輸送海水、淡水、冷熱水、飲用水、生活污水、原油、燃油、潤滑油、成品油、空氣、煤氣、溫度不高于250度的蒸汽和顆粒粉狀等介質。
這次開工建設的主體躉船長約60米,預計今年4月底完成交付安裝。濱江新區常務副指揮長沙德宏:“躉船今天正式開始建設,4月份整個躉船能夠就位。這樣的話我們就初步具備了停靠旅游游船的碼頭功能。這個碼頭的建設對我們創建5a級景區,豐富我們的旅游業態,也是打開我們馬鞍山旅游窗口的一個重要載體,所以我們全力在加快推進。

請點擊圖片看大圖
| 公稱通徑Norminal Diameter DN(mm) | 徑向很大尺寸Max radial size D(mm) | 球心距Globe Distance E(mm) | 轉矩Torque(KN.M) | 接口端口尺寸Size of joint end dxs dxs(mm) | 總長Total length L(mm) | 重量Weight | |||||
| 1.0Mpa | 1.6Mpa | 2.5Mpa | |||||||||
| 1.0Mpa | 1.6Mpa | 2.5Mpa | 4.0Mpa | 法蘭連接Connection Flange | 法蘭Flange | 法蘭Flange | 法蘭Flange | ||||
| 50 | 180 | 114 | 0.07 | 0.11 | 0.17 | 0.28 | 59*3.5 | 200 | 23 | 23.8 | 29 |
| 65 | 198 | 152 | 0.14 | 0.23 | 0.36 | 0.58 | 73*4 | 260 | 31 | 33 | 39 |
| 80 | 225 | 168 | 0.32 | 0.51 | 0.80 | 1.28 | 89*4 | 292 | 45 | 46 | 53 |
| 100 | 260 | 178 | 0.54 | 0.86 | 1.34 | 2.15 | 108*4 | 310 | 66 | 68 | 82 |
| 125 | 300 | 206 | 1.04 | 1.67 | 2.61 | 4.18 | 133*4 | 350 | 87 | 91 | 111 |
| 150 | 375 | 254 | 1.52 | 2.43 | 3.80 | 6.08 | 159*4.5 | 440 | 99 | 101 | 125 |
| 200 | 440 | 236 | 2.15 | 3.45 | 5.39 | 8.63 | 219*5 | 435 | 137 | 141 | 176 |
| 250 | 540 | 315 | 4.22 | 6.75 | 10.55 | 16.88 | 273*6 | 584 | 262 | 271 | 330 |
| 300 | 608 | 275 | 6.34 | 10.15 | 15.86 | 25.38 | 325*6 | 602 | 360 | 375 | 457 |
| 350 | 685 | 370 | 8.31 | 13.30 | 20.78 | 33.25 | 377*8 | 670 | 546 | 569 | 696 |
| 400 | 780 | 420 | 10.83 | 17.32 | 27.06 | 43.30 | 426*8 | 757 | 645 | 665 | 822 |
| 450 | 825 | 435 | 15.34 | 24.55 | 38.36 | 61.38 | 480*8 | 822 | 911 | 956 | 947 |
| 500 | 900 | 336 | 20.81 | 33.30 | 52.03 | 13.25 | 529*8 | 728 | 1045 | 1111 | 1315 |
| 600 | 1055 | 448 | 26.22 | 41.95 | 65.55 | 104.87 | 630*8 | 900 | 1449 | 1640 | 1895 |
| 700 | 1300 | 710 | 31.78 | 50.84 | 79.44 | 127.10 | 720*8 | 1290 | - | - | - |
| 800 | 1450 | 830 | 38.26 | 61.22 | 95.65 | 153.05 | 820*10 | 1480 | - | - | - |
| 900 | 1630 | 950 | 45.20 | 72.32 | 113.05 | 180.80 | 920*110 | 1650 | - | - | - |
| 1000 | 1810 | 1100 | 52.74 | 84.38 | 131.84 | 210.95 | 1020*10 | 1810 | - | - | - |
| 1100 | 1990 | 1350 | 60.91 | 97.46 | 152.28 | 243.65 | 1120*12 | 2050 | - | - | - |
| 1200 | 2170 | 1550 | 69.78 | 111.65 | 174.45 | 279.45 | 1220*14 | 2280 | - | - | - |
專業制造、專業服務,駱盈為你創造更多價值 !
不斷提升服務質量,精益求精,“真誠的服務”是駱盈永恒的主題。駱盈嚴格按照 要求,質量嚴格把關,責任到人,確保生產、銷售、服務的健康運行。加強與用戶溝通,竭誠為廣大客戶提供優質產品,至善至美服務,特此駱盈做出如下承諾:
產品標準
產品嚴格按照中國 GB、HG 標準和美國 API 等標準設計、制造、驗收。密封面硬度達到規定要求,寬度超過標準。
售前服務
產品介紹,技術交流,非標產品設計,疑難解答。
售中服務
1、守信合同,保證及時供貨,隨時保持與客戶聯系
2、對特殊或復雜的產品,我廠安排技術人員對用戶進行產品使用、故障排除、調式及維修進行培訓和指導。
售后服務
1、駱盈產品質保期為自出廠起 12 個月,實行“三包”服務(包退、包換、包修)。
2、產品在使用中我廠定期組織技術、檢查人員進行訪問,征詢用戶對產品質量、使用狀況、改進意見等方面的反饋,以便進一步提高產品質量。
3、對用戶投訴產品質量問題,快速做出反映,售后服務人員在 24-36 小時(省外 48 小時)趕赴現場。
4、對售后服務,要求用戶填寫服務后的質量反饋表,并做出鑒定意見,共同提高駱盈的產品質量與服務質量。
1、客戶采購清單請傳真至 021-64207088 E-mail:luoying@luoyingsh.com,或來電咨詢 021-62212627。
2、收到客戶采購清單,為客戶提供產品型號選型與報價(價格清單)。
3、具體商定:交貨期、特殊要求等事宜。
訂貨須知
1、客戶對產品有特殊要求,須在訂貨合同中提供以下說明:
(1)結構長度
(2)連接形式
(3)公稱直徑、全通徑、縮徑、管道尺寸
(4)用介質及溫度、壓力范圍
(5)實驗、檢驗標準及其他要求本廠可根據客戶特殊要求配置定做和設計特殊產品。
2、本廠可根據客戶特殊要求配置定做和設計特殊產品。
3、如由客戶提供確定的產品類型和型號時,客戶應正確說明其型號的含義和要求,在供需雙方理解一致的條件下簽訂合同。
您也可以聯系在線客服